Курс доллара на сегодня 2.929 BYN

Технический дизайн-проект — это профессионально разработанная документация, которая используется для реализации архитектурных и интерьерных решений. Он включает чертежи, схемы, спецификации материалов и другие важные данные, необходимые для успешного завершения строительства или ремонта.
Этот этап проектирования служит мостом между творческой концепцией дизайнера и практической реализацией. Технический проект гарантирует, что все детали будут соответствовать первоначальной задумке и требованиям клиента.

Без грамотно составленного технического проекта реализация любого дизайнерского решения сталкивается с множеством рисков: от неправильно установленных коммуникаций до несоответствия материалов или мебели. Этот проект помогает:
Создание технического дизайн-проекта включает несколько ключевых этапов, каждый из которых важен для успешного выполнения работ:
На этом этапе специалисты проводят измерения объекта и анализируют его особенности. Это помогает выявить технические ограничения и учесть их при разработке концепции.
На основе анализа разрабатывается концептуальный дизайн, который включает стилистические решения, цветовые схемы и материалы. Этот этап также включает предварительную расстановку мебели и оборудования.
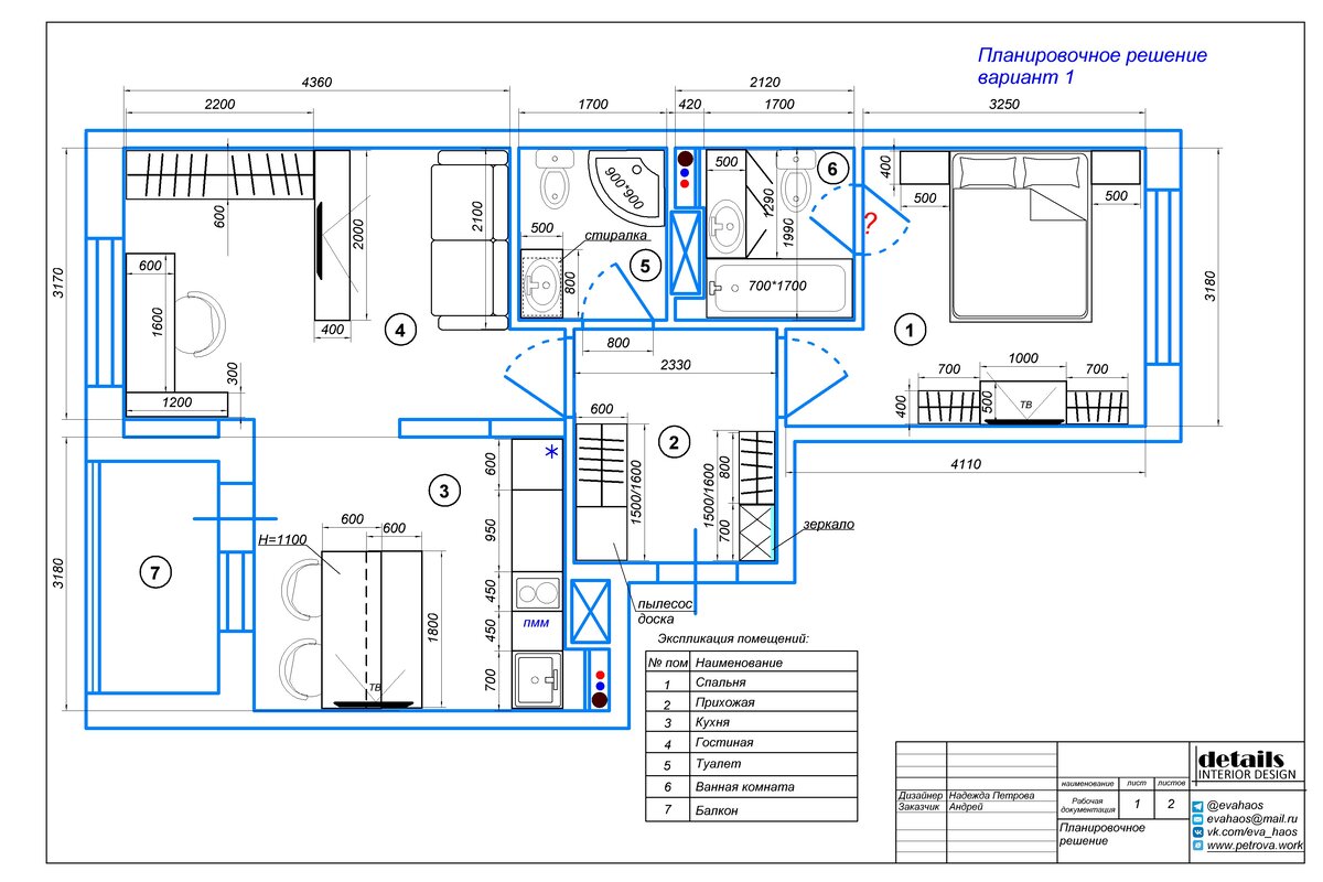
Техническая документация включает:
Этот этап включает подбор материалов, мебели, сантехники и декора с указанием их характеристик и стоимости. Спецификации упрощают закупки и реализацию проекта.
Финальный проект согласовывается с клиентом, и при необходимости в него вносятся корректировки.
Грамотно составленный технический проект предоставляет множество преимуществ:
Рассмотрим примеры, где технический проект особенно необходим:
При создании современных интерьеров важно учитывать размещение мебели, освещения, розеток и декора. Технический проект позволяет все это спланировать с учетом особенностей пространства.

Для строительных работ технический проект помогает организовать прокладку коммуникаций, расположение окон и дверей, а также подобрать подходящие строительные материалы.
В магазинах, офисах и ресторанах проект помогает эффективно зонировать пространство для сотрудников и клиентов.
Технический дизайн-проект — это важный инструмент, который позволяет сэкономить время, деньги и нервы при реализации архитектурных и интерьерных решений. Благодаря профессионально составленному проекту можно быть уверенным, что результат полностью удовлетворит ожидания клиента.
Проектирование дома — это сложный процесс, который сочетает творческий подход и инженерные расчеты. От качества проекта зависят комфорт, энергоэффективность и долговечность будущего здания. Современные технологии позволяют реализовать даже самые смелые задумки, начиная от уникальной архитектуры до экологически чистых систем отопления.
Профессиональное проектирование помогает создать дом, который будет комфортным, долговечным и экономичным в эксплуатации.
Загородный дом — это не только жилое пространство, но и отражение стиля жизни его владельцев. Дизайн такого дома направлен на создание уюта, единения с природой и функциональности. Особенности загородного дома требуют комплексного подхода: от выбора строительных материалов до благоустройства прилегающей территории.


Комплектация дизайн-проекта — это важный этап, который обеспечивает соответствие реализации проекта первоначальной концепции. На этом этапе подбираются все элементы интерьера: от отделочных материалов до мелких деталей декора.
Комплектация помогает избежать несовпадений в финальном интерьере и ускоряет процесс реализации.

Планировочное решение — это первый и важнейший шаг в создании любого интерьера. Оно позволяет организовать пространство таким образом, чтобы оно отвечало всем требованиям и было удобным для проживания или работы.
Инженерный проект включает разработку всех систем коммуникаций: электричества, водоснабжения, отопления, вентиляции. Это гарантирует удобство и безопасность эксплуатации дома.
3D визуализация интерьера — это процесс создания трехмерного изображения будущего интерьера с помощью специальных компьютерных программ. Она позволяет заказчику увидеть, как будет выглядеть помещение после завершения ремонта или строительства, включая цветовые решения, мебель, освещение и декоративные элементы.
Эта технология открывает новые возможности для дизайнеров и клиентов, давая возможность экспериментировать с дизайном без необходимости реальных затрат.

3D визуализация стала неотъемлемой частью процесса проектирования благодаря своим многочисленным преимуществам:
На первом этапе дизайнер собирает информацию о помещении: размеры, формы, технические особенности. Также уточняются пожелания заказчика, включая стиль, палитру и функциональные особенности.
На основе собранных данных разрабатывается трехмерная модель помещения. Это основа, которая позже наполняется мебелью, текстурами и декором.
На этом этапе добавляются текстуры материалов, таких как дерево, камень, ткань, а также настраивается освещение, чтобы визуализация выглядела максимально реалистично.
После настройки всех элементов программа выполняет рендеринг — создание фотореалистичного изображения. Это может занять от нескольких часов до нескольких дней в зависимости от сложности проекта.
Готовые изображения или видео представляются заказчику. При необходимости в проект вносятся корректировки.
3D визуализация значительно упрощает процесс проектирования и помогает избежать множества проблем:
Визуализация интерьера активно развивается благодаря внедрению новых технологий. Сегодня популярны:
Позволяет заказчику "прогуляться" по будущему интерьеру в режиме реального времени, что дает более глубокое представление о пространстве.
С помощью смартфона или планшета можно увидеть, как мебель или декор будет выглядеть в реальном помещении.
AI упрощает процесс проектирования, автоматически подбирая оптимальные текстуры, освещение и цветовые решения.
3D визуализация активно используется в различных сферах:
3D визуализация интерьера — это мощный инструмент для дизайнеров, архитекторов и заказчиков. Она помогает не только увидеть будущий интерьер, но и избежать ошибок, оптимизировать процесс и достичь идеального результата. Благодаря современным технологиям визуализация становится все более доступной и реалистичной, что делает ее важным этапом любого проекта.